FIM Gruppe
 Kaufen » Exposé

Eine Rarität mit großartigem Charm – Wohn- und Geschäftshaus in der Lengericher Innenstadt

Ort Lengerich

IMPRESSIONEN

Kaufpreis:

399.000,00 EUR   5,95 % inkl. MwSt. % Courtage

Bechreibung

Ein Fachwerkhaus zum Erleben.
Dieses Wohn- und Geschäftshaus wurde ca. 1824, mit viel Liebe zum Detail, erbaut und ist heute eine ansehnliche Rarität. Im Jahr 1985 wurde das Gebäude kernsaniert und seit dem fortlaufend instandgehalten.
Ein paar kleine Handgriffe und ein schneller Einzug ist möglich.

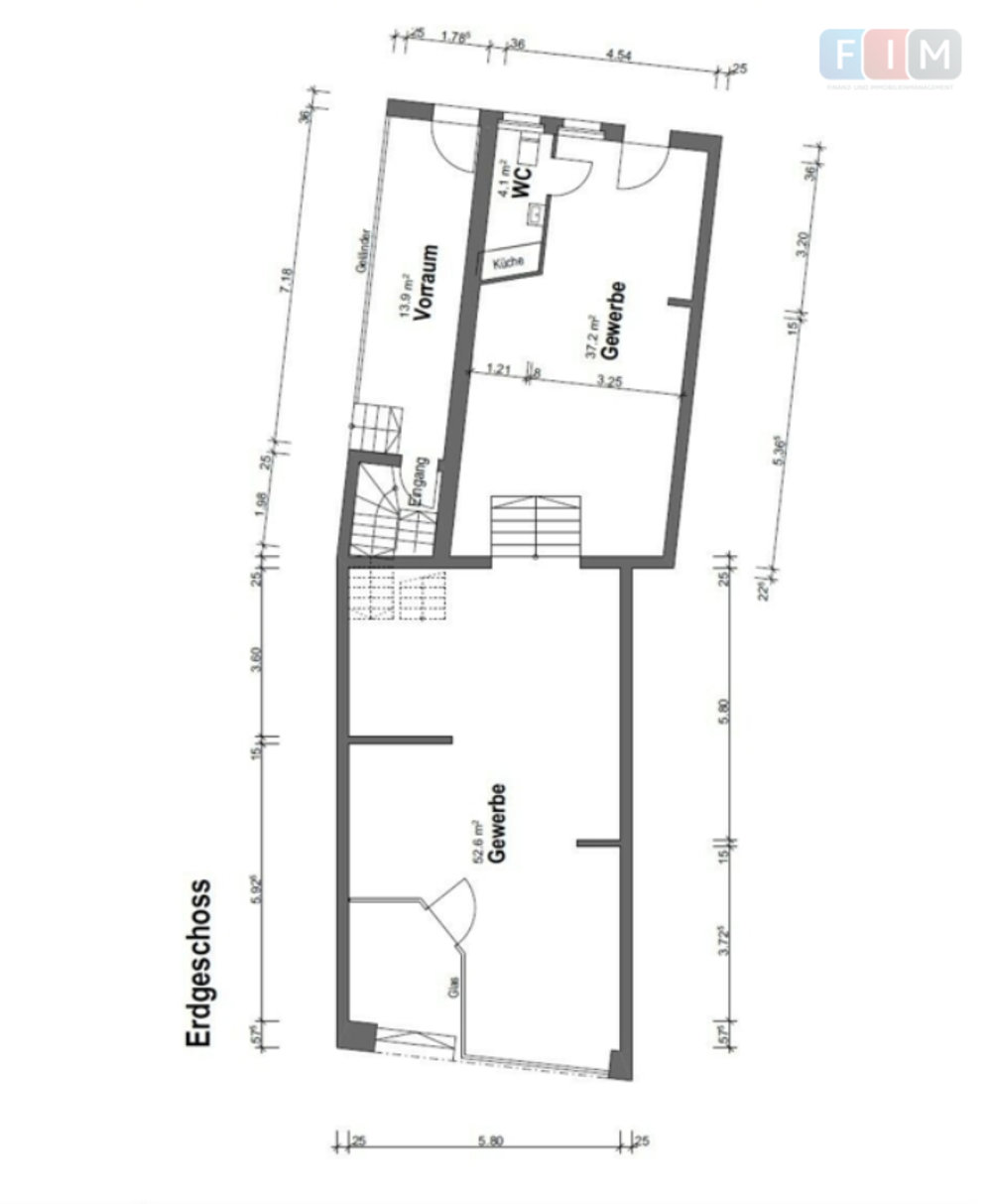
Das Ladenlokal wurde 2016 bereits renoviert. Es bietet Ihnen ca. 90 m² und somit genügend Platz zur freien Entfaltung. Durch eine Treppe ist die Fläche in 2 Bereiche geteilt, wodurch ein modernes und ansehnliches Raumgefühl geschaffen wird.

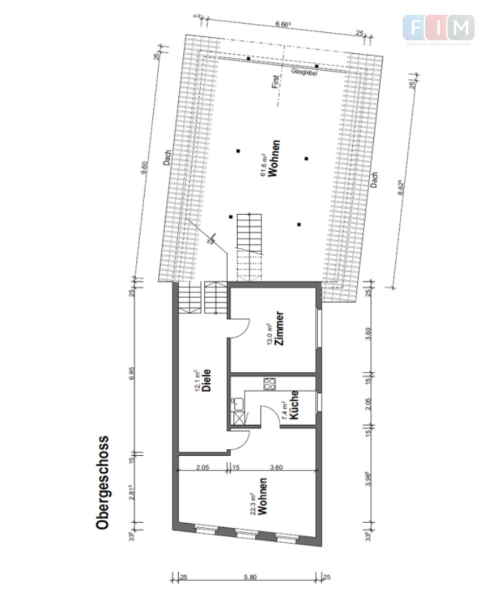
Ein separater Eingang ermöglicht Ihnen den Zutritt zu der Wohneinheit. Die ca. 150 m² große Wohnfläche ist ein wahrer Ort zum Wohlfühlen. Der Charm des Fachwerks ist hier wiederzufinden. Die hohen Decken und das alte Ständerwerk des Hauses, in Kombination mit den modernen Elementen, wie der dreieckigen Fensterfront im Wohnzimmer, sorgen für ein beeindruckendes Ambiente. Eine weitere Besonderheit ist der Grundriss. Die Räumlichkeiten verteilen sich auf 3 Ebenen. Hier ein kleiner Überblick:
Auf der ersten Ebenen wird Ihnen ein Raum sowie das großzügige Esszimmer mit Zugang zu der Küche, geboten. Über wenige Stufen gelangen Sie in den freundlichen Wohnbereich mit einem separaten Abstellraum. Hier kann man hervorragend entspannen und den Alltag hinter sich lassen.
Eine weitere Treppe ermöglicht Ihnen den Zugang zu der obersten Ebene. Diese bietet Ihnen das Tageslichtbad sowie 2 Abstellräum, die ausgezeichnet als Ankleide genutzt werden können.

Darüber hinaus besitzt das Gebäude einen Keller, der sich ebenfalls auf mehrere Ebenen verteilt. Ein WC mit Platz für eine Wachmaschine sowie ein Weinkeller und ein weiterer Raum stehen Ihnen hier zur Verfügung.

Eine Terrasse mit Blick ins Grüne rundet das Angebot ab. Sie lädt zum Verweilen ein und ermöglicht Ihnen eine Erholung an frischer Luft.

Zudem befinden sich im Hinterhof Stellplätze, auf denen 5 Autos bequem abgestellt werden können.

Eine Vermietung ist ebenfalls möglich.

Ausstattung


  • Wohnfläche 150m²
  • Zimmerzahl 4
  • Schlafzimmer 2
  • Badezimmer 1
  • Terassen 1

Lage

Mit rund 22.200 Einwohnern ist Lengerich eine Mittelstadt und liegt in der Region Tecklenburger Land.

In bester Zentrumslage befindet sich dieses Objekt inmitten der Fußgängerzone. Alle Dinge des täglichen Bedarfs sind fußläufig zu erreichen. So befinden sich unterschiedliche Lebensmittelläden, wie beispielsweise Rewe in unmittelbarer Nähe. Ebenso unterschiedliche Kindergärten und Schulen sowie Ärzte. Lengerich verfügt über ein Krankenhaus, eine nahgelegene Feuerwache und eine Polizeistation.

Außerdem ist eine gute Infrastruktur gegeben. Mehrere Bushaltestellen sind in wenigen Gehminuten zu erreichen und ein Bahnhof ist auch vorhanden. Hier fährt die Westfahlen-Bahn stündlich in die Großstädte Münster und Osnabrück. Des Weiteren verläuft die Autobahn 1 durch Lengerich und ermöglicht ebenfalls eine gute Anbindung in die Nachbarorte. Der Flughafen Münster/Osnabrück ist in ca. 16,7 km Entfernung und schnell erreicht.

Zahlreiche Firmen sind ansässig. So haben die großen Unternehmen Windmöller & Hölscher, Garant Maschinen und Dyckerhoff ihren Hauptsitz in Lengerich.
Zudem werden verschiedene Freizeitmöglichkeiten, wie ein Sportplatz, eine Tennishalle, eine Reithalle und einiges mehr, geboten. Zur Erholung dienen zum Beispiel ein Spaziergang durch den Skulpturenpark und entlang des Canyons.

Ihr Ansprachpartner

Frau Melissa Hijlkema
FIM Finanz- und Immobilienmanagement GmbH
Gewerbepark 18
49143 Bissendorf
E-Mail: melissa.hijlkema@fim-gruppe.de
Tel.: + 49 5402 / 701500
Fax: +49 5402 / 701515

KONTAKT AUFNEHMEN

Ich bitte um:


Mit * gekennzeichnete Felder sind Pflichtfelder.