FIM Gruppe
 Kaufen » Exposé

Eine Wohlfühloase zum Verlieben

Ort Osnabrück

IMPRESSIONEN

Kaufpreis:

492.866,00 EUR   3,57 % inkl. MwSt. % Courtage

Bechreibung

Herzlich Willkommen in Ihrem neuen Zuhause!

Dieses hochwertige Reihenhaus entsteht in einer kleinen Siedlung umgeben von ausgedehnten Grünflächen in der Mitte von drei Gebäudeteilen. Ausgestattet mit hochwertigen Materialien und ansprechend aufgeteilt, wird es auch Ihren Ansprüchen gerecht.

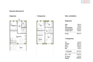
So finden Sie im Obergeschoss drei individuell gestaltete Schlafzimmer. Wenngleich alle wohnlich gestaltet sind und mit einem modernen Vinylboden in Holzoptik versehen werden, finden Sie im Hauptschlafzimmer zusätzlich einen Ankleidebereich. Auch das Tageslichtbad mit bodengleicher Dusche, Grohe Armarturen und Sanitärobjekten von Geberit wird Ihre Begeisterung finden.

Im Erdgeschoss öffnen große Glasfronten den Raum in Richtung Garten und laden dazu ein die Gedanken schweifen zu lassen. Genießen Sie den kleinen Urlaub doch ab sofort in Ihrem Wohnzimmer.

Das Projekt wird von der Ratermann & Beckmann Projektentwicklungsgesellschaft in Zusammenarbeit mit der SAHM GmbH realisiert. Die Firmenphilosophie der beiden Geschäftsführer Thomas Ratermann und Bernd Beckmann beruht darauf bleibende Werte zu schaffen. Sie eint bis heute eine klare Vorstellung davon, wie Wohnraum beschaffen sein muss. Ihr Ziel ist es, Immobilienprojekte zu entwickeln und realisieren, die positive Emotionen auslösen und das Stadtbild nachhaltig zum Besseren verändern.

Gerne überzeugen wir Sie in einem persönlichen Gespräch von diesem tollen Domizil.

Ausstattung


  • Objektart REIHENHAUS
  • Baujahr 115m²
  • Wohnfläche 115m²
  • Zimmerzahl 4
  • Schlafzimmer 3
  • Badezimmer 1
  • Terassen 1

Lage

Osnabrück ist mit rund 165.000 Einwohnern eine Großstadt und Sitz des Landkreises Osnabrück.

Diese fünf Einheiten befinden sich in traumhafter Lage von Osnabrück-Gretesch. Gretesch bietet durch seine ausgedehnten Grünflächen einen perfekten Ausgleich zur nahegelegenen Innenstadt.

Die Stadt hält für Sie neben Einkaufsmöglichkeiten und Geschäfte, auch zahlreiche Ladenlokale, Ärzte und Schulen bereit. Bis zur nächsten Grundschule sind es weniger als 1 km, auch einige Kindergärten sind schnell erreicht.
Zusätzlich gibt es in Osnabrück ein vielseitiges Sport-, Kultur- und Freizeitangebot und ist ein attraktiver Ort zum Leben.

Der Hauptbahnhof liegt in einer Entfernung von ca. 4,5 km und öffentliche Verkehrsmittel fahren regelmäßig.

Die Autobahn 30 verläuft durch Osnabrück und kreuzt sich mit der A 1 und der A 33. Somit ist eine gute Anbindung in die umliegenden und auch weiter entfernteren Orte gegeben.

Ihr Ansprachpartner

Herr Lars Pfeiffer
FIM Finanz- und Immobilienmanagement GmbH
Gewerbepark 18
49143 Bissendorf
E-Mail: lars.pfeiffer@fim-gruppe.de
Tel.: +495402701500
Fax: +49 5402 / 701515

KONTAKT AUFNEHMEN

Ich bitte um:


Mit * gekennzeichnete Felder sind Pflichtfelder.