FIM Gruppe
 Kaufen » Exposé

Entspanntes Wohnen in Voxtrup - mit Stil und Anspruch!

Ort Osnabrück / Voxtrup

IMPRESSIONEN

Kaufpreis:

508.464,00 EUR   3,57 % % Courtage

Bechreibung

Auf einem großzügigen, sonnigen Südwest-Eckgrundstück entsteht ein äußerst ansprechender Neubau in klassisch-moderner Architektur. Das Gebäude umfasst sieben Wohnungen, ein zentrales Treppenhaus mit Technikräumen und ein Nebengebäude.

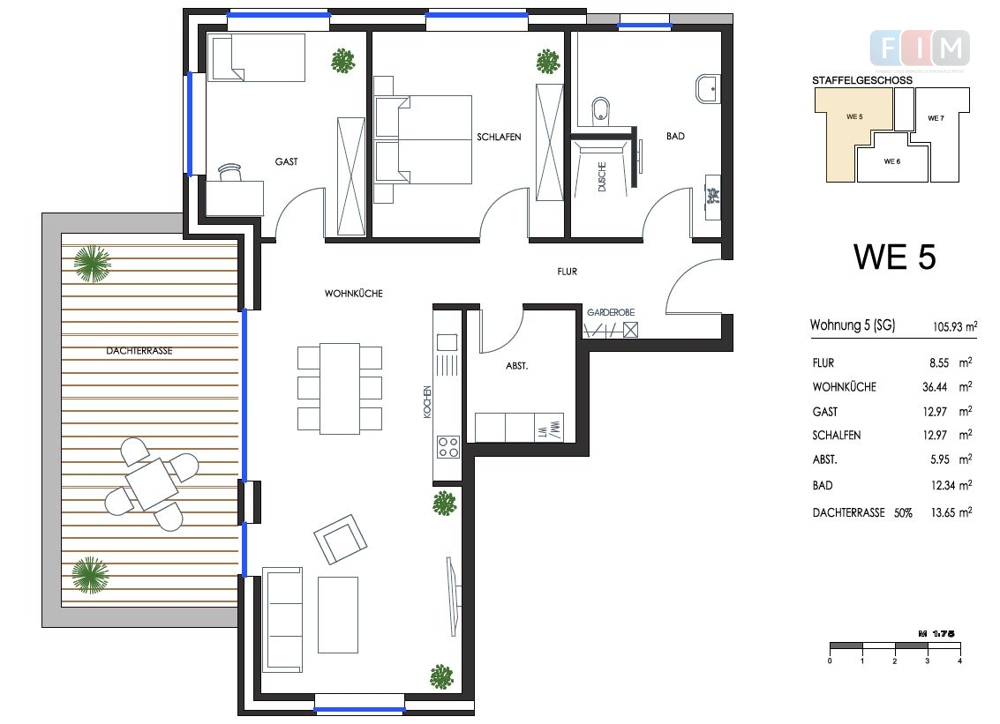
Diese Wohneinheit im Obergeschoss umfasst 105,93 m² Wohnfläche. Sie bietet eine offene Wohnküche, zwei Schlafzimmer und einen praktischen Abstellraum. Zu dieser Wohnung gehört eine großzügige Dachterrasse mit Süd Ausrichtung.

Große Glasfronten und bodentiefe Fenster verleihen dieser exklusiven Mehrfamilien-Anlage ein modernes Erscheinungsbild, schaffen lichtdurchflutete Wohnwelten und eröffnen schöne Blicke nach draußen. Die einladende Architektursprache setzt sich auch im Inneren der Wohnung fort.

Die Ausstattung ist hochwertig und für anspruchsvolle Bewohner konzipiert. Fußbodenheizung, erstklassige Verarbeitung, modernes Feinsteinzeug in den Bädern, Grohe Armaturen und Sanitärobjekte von Geberit schaffen eine hohe Wohnqualität. Jeder Einheit ist mindestens ein Stellplatz (gegen Aufpreis) zugeordnet.

Das Projekt wird von der Ratermann & Beckmann Projektentwicklungsgesellschaft in Zusammenarbeit mit der SAHM GmbH realisiert. Die Firmenphilosophie der beiden Geschäftsführer Thomas Ratermann und Bernd Beckmann beruht darauf bleibende Werte zu schaffen, Sie eint bis heute eine klare Vorstellung davon, wie Wohnraum beschaffen sein muss. Sie wollen Immobilienprojekte entwickeln und realisieren, die positive Emotionen auslösen und das Stadtbild nachhaltig zum Besseren verändern.

Gerne präsentieren wir Ihnen die Neubauwohnungen in einem persönlichen Gespräch.
Ihre Ansprechpartner dafür sind:

Robert Hase – 0160 94 86 02 44

Ausstattung


  • Objektart ETAGE
  • Baujahr 106m²
  • Wohnfläche 106m²
  • Zimmerzahl 3
  • Schlafzimmer 2
  • Badezimmer 1
  • Balkone 1

Lage

Osnabrück ist mit rund 165.000 Einwohnern eine Großstadt und Sitz des Landkreises Osnabrück.

Dieses Objekt befindet sich in attraktiver Lage im Stadtteil Voxtrup. Die Innenstadt von Osnabrück ist nur 5 km entfernt und schnell erreichbar. Umliegend finden Sie alle Dinge des täglichen Bedarfs, wie Lebensmittelgeschäfte, Banken, einen Bäcker und eine Apotheke.

Die Stadt bietet weitere Einkaufsmöglichkeiten und Geschäfte, zahlreiche Ladenlokale, Ärzte und Schulen. Bis zur nächsten Grundschule sind es nur 500 m, auch einige Kindergärten sind schnell erreicht.
Zusätzlich gibt es in Osnabrück ein vielseitiges Sport-, Kultur- und Freizeitangebot und ist ein attraktiver Ort zum Leben.

Der Hauptbahnhof liegt in einer Entfernung von ca. 4,5 km und öffentliche Verkehrsmittel fahren regelmäßig.

Die Autobahn 30 verläuft durch Osnabrück und kreuzt sich mit der A 1 und der A 33. Somit ist eine gute Anbindung in die umliegenden und auch weiter entfernteren Orte gegeben.

Ihr Ansprachpartner

Herr Robert Hase
FIM Finanz- und Immobilienmanagement GmbH
Gewerbepark 18
49143 Bissendorf
E-Mail: robert.hase@fim-gruppe.de
Tel.: +49 5402 / 701500
Fax: +49 5402 / 701515

KONTAKT AUFNEHMEN

Ich bitte um:


Mit * gekennzeichnete Felder sind Pflichtfelder.