FIM Gruppe
 Kaufen » Exposé

Exklusives Neubauprojekt in traumhafter Wohnlage von Osnabrück!

Ort Osnabrück

IMPRESSIONEN

Kaufpreis:

2.516.644,00 EUR   3,57 % inkl. MwSt. % Courtage

Bechreibung

Erschaffen Sie hier ein gefragtes Domizil!

Diese attraktiven fünf Einheiten schmiegen sich perfekt in die umgebende Bebauung ein, sodass Sie durch moderne Raumaufteilung und angenehme Hausgrößen die Nachfrage seitens der Mieter steigern können. In exklusiver Architektur entstehen so ca. 549,50 m² auf einem 1.173,00 m² großen Grundstück.
Auch die Ausstattung kann sich sehen lassen, denn egal ob es die moderne Heizungstechnik mit einer Luftwärmepumpe, die bodentiefen Fenster oder auch eine hochwertige Innenaustattung ist - hier wurde an alles gedacht.
Genuss pur bieten die Doppelhaushälften, denn ein gut geschnittenes, großes und nach Süden ausgerichtetes Grundstück werden durch einen unverbaubaren Blick ins Grüne veredelt.

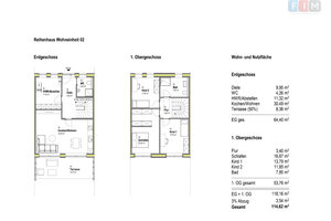
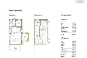
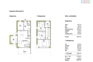
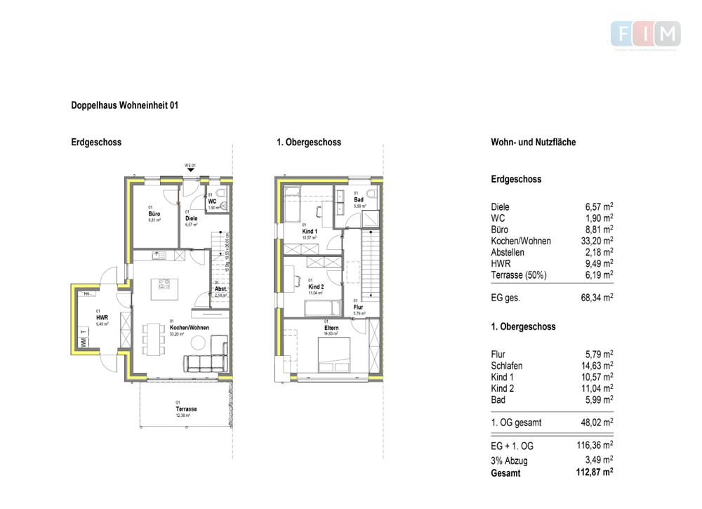
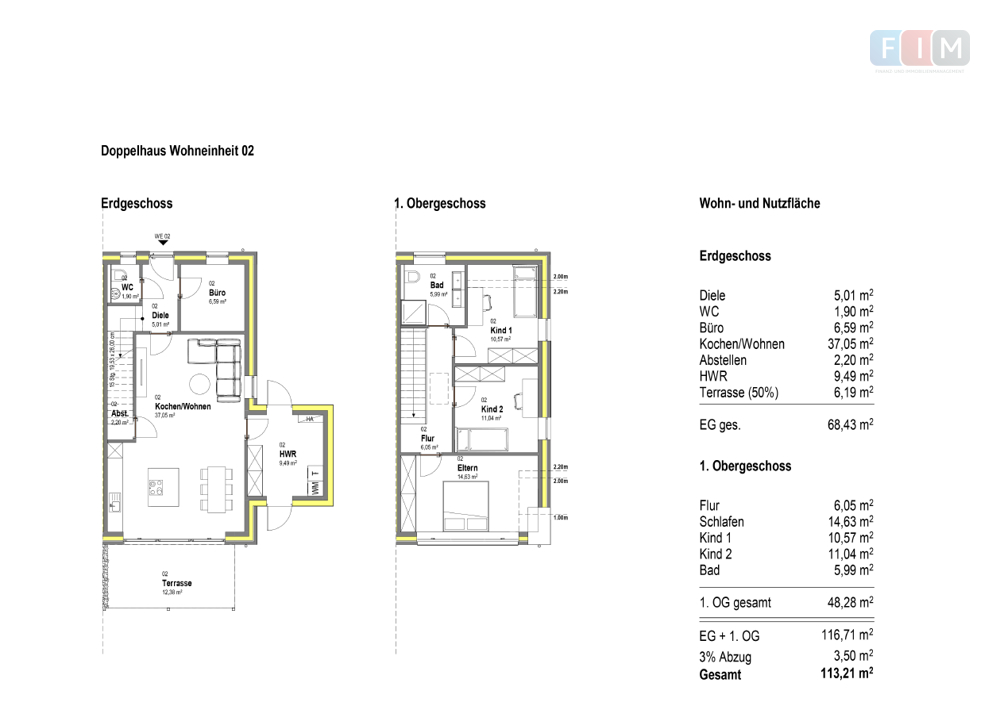
Die Wohnfläche teilt sich wie folgt auf:
Doppelhaushälfte 1 - 112,87 m²
Doppelhaushälfte 2 - 113,21 m²
Reihenhaus 1 - 114,62 m²
Reihenhaus 2 - 114,61 m²
Reihenhaus 3 - 114,10 m²

Und ihr Profit? Auf Grund der guten Nachfrage sehen wir eine Mieteinnahme von ca. 75.160,00 € als nachhaltig erzielbar.

Das Projekt wird von der Ratermann & Beckmann Projektentwicklungsgesellschaft in Zusammenarbeit mit der SAHM GmbH realisiert. Die Firmenphilosophie der beiden Geschäftsführer Thomas Ratermann und Bernd Beckmann beruht darauf bleibende Werte zu schaffen, Sie eint bis heute eine klare Vorstellung davon, wie Wohnraum beschaffen sein muss. Sie wollen Immobilienprojekte entwickeln und realisieren, die positive Emotionen auslösen und das Stadtbild nachhaltig zum Besseren verändern.

Gerne präsentieren wir Ihnen dieses Projekt auch in einem persönlichen Gespräch.

Ausstattung


  • Objektart MEHRFAMILIENHAUS
  • Baujahr 569m²
  • Wohnfläche 569m²
  • Zimmerzahl 23
  • Schlafzimmer 17
  • Badezimmer 5
  • Terassen 5

Lage

Osnabrück ist mit rund 165.000 Einwohnern eine Großstadt und Sitz des Landkreises Osnabrück.

Diese fünf Einheiten befinden sich in traumhafter Lage von Osnabrück-Gretesch. Gretesch bietet durch seine ausgedehnten Grünflächen einen perfekten Ausgleich zur nahegelegenen Innenstadt.

Die Stadt hält für Sie neben Einkaufsmöglichkeiten und Geschäfte, auch zahlreiche Ladenlokale, Ärzte und Schulen bereit. Bis zur nächsten Grundschule sind es weniger als 1 km, auch einige Kindergärten sind schnell erreicht.
Zusätzlich gibt es in Osnabrück ein vielseitiges Sport-, Kultur- und Freizeitangebot und ist ein attraktiver Ort zum Leben.

Der Hauptbahnhof liegt in einer Entfernung von ca. 4,5 km und öffentliche Verkehrsmittel fahren regelmäßig.

Die Autobahn 30 verläuft durch Osnabrück und kreuzt sich mit der A 1 und der A 33. Somit ist eine gute Anbindung in die umliegenden und auch weiter entfernteren Orte gegeben.

Ihr Ansprachpartner

Herr Lars Pfeiffer
FIM Finanz- und Immobilienmanagement GmbH
Gewerbepark 18
49143 Bissendorf
E-Mail: lars.pfeiffer@fim-gruppe.de
Tel.: +495402701500
Fax: +49 5402 / 701515

KONTAKT AUFNEHMEN

Ich bitte um:


Mit * gekennzeichnete Felder sind Pflichtfelder.