FIM Gruppe
 Kaufen » Exposé

Klein aber fein – Eine Eigentumswohnung für den Eigenbedarf oder als Kapitalanlage

Ort Bad Oeynhausen

IMPRESSIONEN

Kaufpreis:

99.000,00 EUR   3,57 % % Courtage

Bechreibung

Sie suchen eine neue Eigentumswohnung für den Eigenbedarf oder als Kapitalanlage? Dann ist diese Eigentumswohnung genau das Richtige.

Dieses Angebot befindet sich in Bad Oeynhausen, einem angenehmen Kurort mit vielen Erholungsmöglichkeiten. Die Werre, ein linker Nebenfluss der Weser, sowie die Anbindung machen diese Stadt zu einem attraktiven Wohnort.

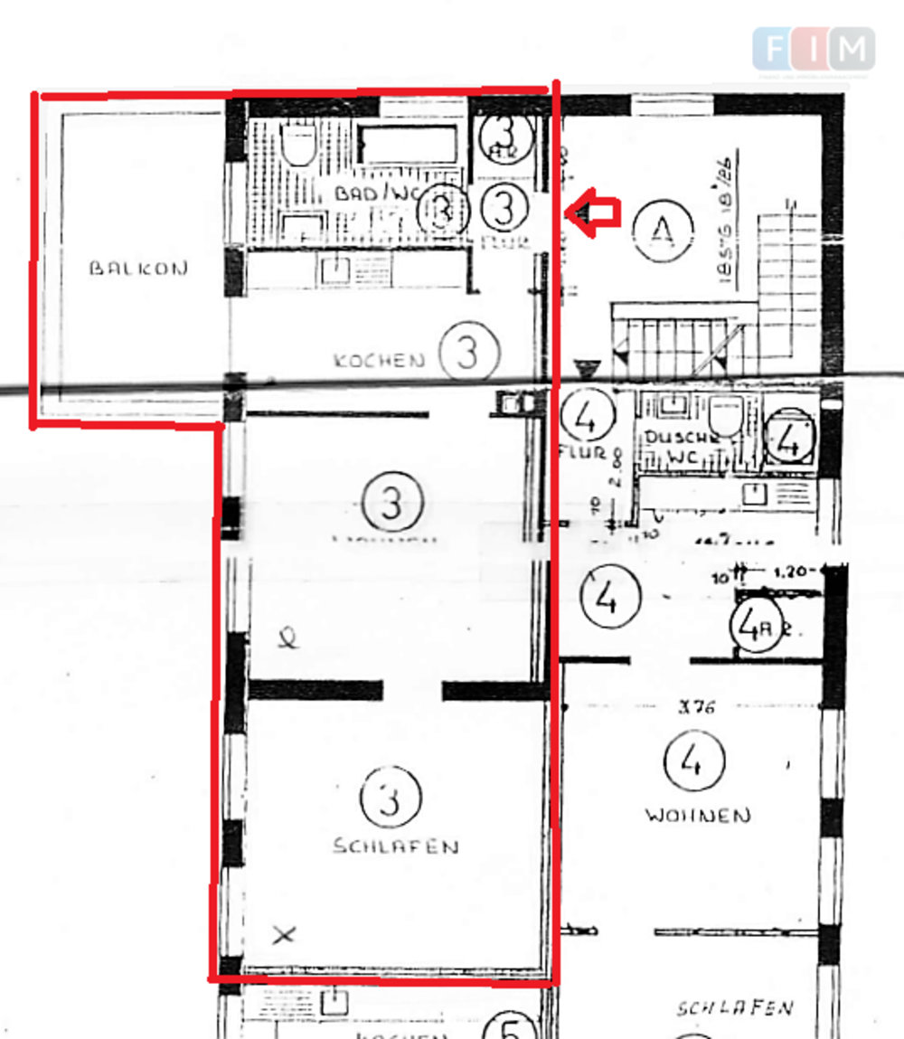
Im dem Ortsteil Rehme befindet sich diese Eigentumswohnung im 1. Obergeschoss eines 6-Familienhauses. Das Haus wurde im Jahr 1927 erbaut und 1993 umfassend saniert. Zum Teil wird der Flair des Altbaus im Wohnraum wiedergespiegelt. Die hohen Decken lassen die ca. 47 m² große Wohnfläche besonders großzügig wirken. Durch die zahlreichen Fenster gelangt viel Tageslicht herein, wodurch ein angenehmes Raumgefühl geschaffen wird.

Treten Sie ein, befinden Sie sich in dem Flur. Von hieraus können Sie geradeaus in das Badezimmer gelangen. Dies ist mit einer Dusche ausgestattet und verfügt über ein Fenster.
Zu Ihrer Linken liegt die Küche mit einer Küchenzeile, einem Esstisch und einem Zugang auf den großzügigen Balkon. Hier können Sie Ihre Mahlzeiten an frischer Luft genießen.
An die Küche grenzt das Wohnzimmer. Eine Wohnlandschaft und eine Wohnwand finden hier ausreichend Platz und ermöglichen gemütliche Abende mit der Familie und Freunden. Weiter erreichen Sie in das Schlafzimmer. Hier kann problemlos ein Doppelbett und ein Kleiderschrank untergebracht werden.

Für zusätzlichen Stauraum sorgt ein Abstellraum, der sich in einem Nachbargebäude befindet.
Das Angebot wird mit einer Garage, in der ein Auto bequem abgestellt werden kann, abgerundet.

Sie wollen sich vor Ort einen Eindruck verschaffen? Dann vereinbaren Sie gerne einen Besichtigungstermin.

Ausstattung


  • Objektart ETAGE
  • Baujahr 50m²
  • Wohnfläche 50m²
  • Zimmerzahl 2
  • Schlafzimmer 1
  • Badezimmer 1
  • Balkone 1

Lage

Bad Oeynhausen ist eine Kurstadt und liegt im Kreis Minden-Lübbecke, der sich entlang des Wiehengebirges und der Weser erstreckt.

In einer grünen Lage von Bad Oeynhausen Rehme liegt Ihre neue Eigentumswohnung.
Diverse Einkaufsmöglichkeiten, Schulen, der Kindergarten und die Bushaltestelle sind in wenigen Gehminuten erreichbar. In unmittelbarrer Nähe zu der Wohnungen befindet sich der Borstenbach, der zu ausgedehnten Spaziergängen einlädt. Die Innenstadt von Bad Oeynhausen und der Werre-Park bedinden sich in geringer Entfernung.

Im Norden grenzt das 6.480 ha umfassende Stadtgebiet an das Wiehengebirge. Der Unterlauf der Werre durchquert die Stadt von West nach Ost und mündet dort in die Weser, die gleichzeitig die natürliche Stadtgrenze zur Nachbarkommune Porta Westfalica bildet.

Die Verkehrsanbindung von Bad Oeynhausen ist sehr gut. Die Autobahnen A 2 und A 30, sowie die Bundesstraßen B 61 und B 514 sind direkt von Bad Oeynhausen aus zu erreichen.

Ihr Ansprachpartner

Frau Melissa Hijlkema
FIM Finanz- und Immobilienmanagement GmbH
Gewerbepark 18
49143 Bissendorf
E-Mail: melissa.hijlkema@fim-gruppe.de
Tel.: + 49 5402 / 701500
Fax: +49 5402 / 701515

KONTAKT AUFNEHMEN

Ich bitte um:


Mit * gekennzeichnete Felder sind Pflichtfelder.