FIM Gruppe
 Kaufen » Exposé

Neubau - Mehrfamilienhaus mit ca. 1.155 qm Wohnfläche, Schlüsselfertig im Gesamtpaket und KfW - 40!

Ort Bersenbrück

IMPRESSIONEN

Kaufpreis:

3.578.800,00 EUR   5,95% % Courtage

Verfügbar ab:

nach Absprache

Bechreibung

Zum FESTPEIS - BUDGETtreu!


Hier haben Sie die Chance auf den Erwerb eines schlüsselfertigen Mehrfamilienhauses im Herzen von Bersenbrück!

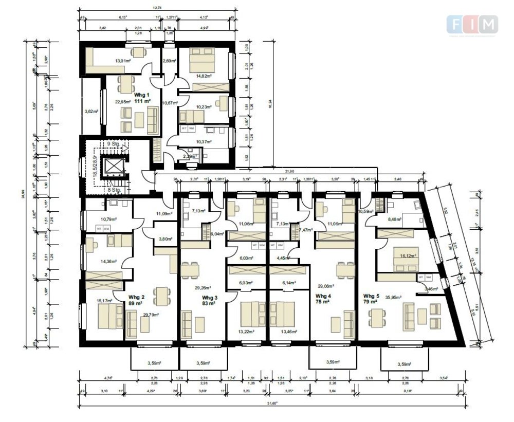
Es entstehen 14 Wohnungen mit insgesamt ca. 1.155 qm Wohnfläche die über unterschiedliche Grundrisse mit 2 bis 4 Zimmern verfügen und zwischen ca. 59 qm bis ca. 111 qm Wohnfläche bieten.

Das Objekt wird mit einem KfW Standard 40EE hergestellt, die Förderung pro Wohneinheit liegt hier bei max. 15.000€. Bei 14 Wohneinheiten beläuft sich die Förderung hier auf 210.000€! Diese ist im Kaufpreis bereits berücksichtigt.

Die einzelnen Wohnungen im Überblick:

Wohnung 1 EG ca. 111,1 qm Wohnfläche, Privatgarten

Wohnung 2 EG ca. 89,6 qm Wohnfläche, Privatgarten

Wohnung 3 EG ca. 83 qm Wohnfläche, Privatgarten

Wohnung 4 EG ca. 75,7 qm Wohnfläche, Privatgarten

Wohnung 5 EG ca. 79 qm Wohnfläche, Balkon

Wohnung 6 OG ca. 111,1 qm Wohnfläche, Balkon

Wohnung 7 OG ca. 89,6 qm Wohnfläche, Balkon

Wohnung 8 OG ca. 83 qm Wohnfläche, Balkon

Wohnung 9 OG ca. 75,7 qm Wohnfläche, Balkon

Wohnung 10 OG ca. 79 qm Wohnfläche, Balkon

Wohnung 11 DG ca. 78,7 qm Wohnfläche, Balkon

Wohnung 12 DG ca. 64,6 qm Wohnfläche, Balkon

Wohnung 13 DG ca. 59,2 qm Wohnfläche, Balkon

Wohnung 14 DG ca. 83,6 qm Wohnfläche, Balkon

Eines haben alle Wohnungen gemeinsam: sie überzeugen durch höchste Verarbeitungsqualität, sind praktisch geschnitten und hochwertig ausgestattet. Das Projekt wird von der SAHM GmbH realisiert. Die Firmenphilosophie der beiden Geschäftsführer Thomas Ratermann und Bernd Beckmann beruht darauf bleibende Werte zu schaffen, Sie eint bis heute eine klare Vorstellung davon, wie Wohnraum beschaffen sein muss. Sie wollen Immobilienprojekte entwickeln und realisieren, die positive Emotionen auslösen und das Stadtbild nachhaltig zum Besseren verändern.

Ausstattung


  • Objektart MEHRFAMILIENHAUS
  • Baujahr 1155m²
  • Wohnfläche 1155m²
  • Zimmerzahl 39
  • Badezimmer 14
  • Terassen 1

Lage

Die schöne Kleinstadt Bersenbrück an der Hase – Hier werden Sie sich Wohlfühlen.

Das Objekt liegt mitten im Zentrum von Bersenbrück. Von hier lässt sich alles gut erreichen.

Selbst für Ihre Kinder sind die Schulen nicht weit entfernt, sodass diese fußläufig oder mit dem Fahrrad erreicht werden können.

Einkaufsläden befinden sich ebenfalls in der Nähe des Objekts. Sowie Krankenhäuser und Ärzte auch vor Ort zu finden sind.

Besonders attraktiv wird die Stadt durch die vielen Freizeitangebote und durch die ideale Anbindung an den ÖPNV.

Dieses wird zum Beispiel deutlich durch die nahliegenden Bundesstraßen 68 und 214 und dem Bahnhof in Bersenbrück. Durch die Sport- und Turnvereine werden Ihnen viele Möglichkeiten von der Stadt angeboten, Ihre Freizeit sportlich und aktiv zu gestalten.

Wenn Sie mit Ihrer Familie einen Ausflug machen wollen, eignet sich hier der nur in ca. 8,0 km entfernte Alfsee, der Angebote vom Wasserski bis hin zu einem Aqua-Park bietet.

Ihr Ansprachpartner

Herr Robert Hase
FIM Finanz- und Immobilienmanagement GmbH
Gewerbepark 18
49143 Bissendorf
E-Mail: robert.hase@fim-gruppe.de
Tel.: +49 5402 / 701500
Fax: +49 5402 / 701515

KONTAKT AUFNEHMEN

Ich bitte um:


Mit * gekennzeichnete Felder sind Pflichtfelder.