FIM Gruppe
 Kaufen » Exposé

Top Renditeobjekt für Kapitalanleger: voll vermietetes und modernisiertes Mehrfamilienhaus

Ort Recklinghausen

IMPRESSIONEN

Kaufpreis:

995.000,00 EUR   5,95 % % Courtage

Bechreibung

Sie sind Kapitalanleger und suchen ein lukratives Renditeobjekt in optimaler Lage?

Dann haben wir hier genau das Richtige für Sie!

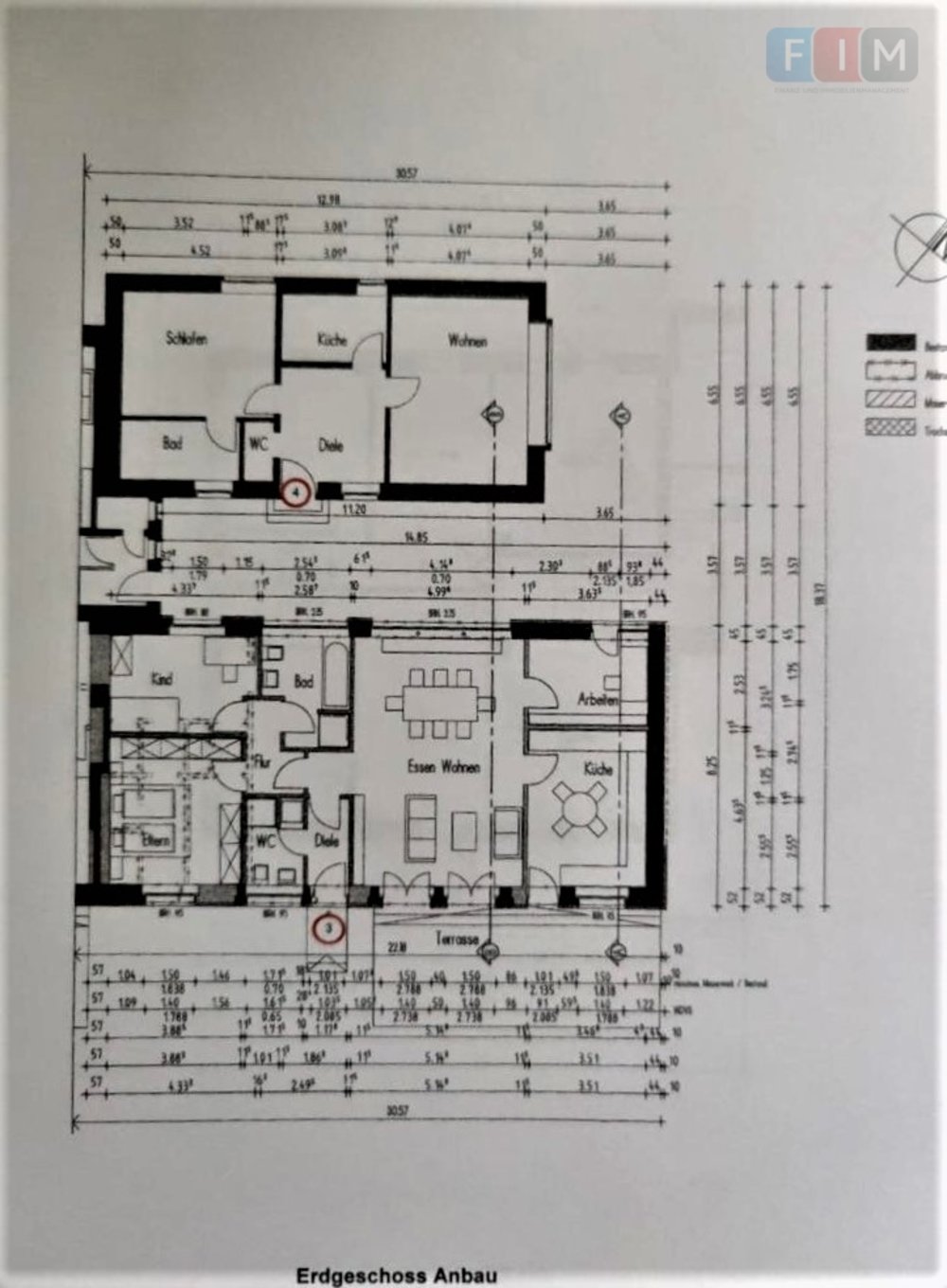
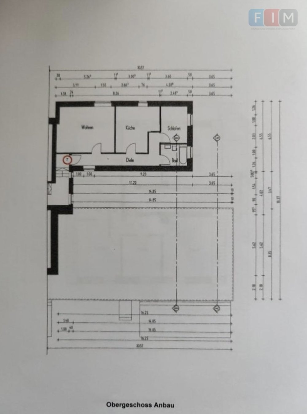
Es erwartet Sie dieses voll vermietete Mehrfamilienhaus mit 9 Wohneinheiten und einer Bürofläche in zentraler Lage von Recklinghausen. Es erwirtschaftet eine aktuelle Jahresnettokaltmiete von ca. 48.781,20 €

Das Objekt befindet sich in bestem Zustand, das Haupthaus wurde 1946 errichtet sowie ca. 1970 und 2004 erweitert und laufend instand gehalten.
Insgesamt stehen ca. 671 m² vermietbare Fläche zur Verfügung.

Des weiteren verfügt die Immobilie über einige Außenstellplätze.

Ein Energieausweis ist derzeit in Bearbeitung.

Ausstattung


  • Objektart MEHRFAMILIENHAUS
  • Baujahr 643m²
  • Wohnfläche 643m²
  • Terassen 2

Lage

Die Immobilie befindet sich in einer zentralen Lage im Süden von Recklinghausen.
In unmittelbarer Nähe befinden sich Geschäfte für den täglichen Bedarf sowie Schulen, Kindergärten und öffentliche Einrichtungen.
Die Anbindungen an die öffentlichen Verkehrsmittel sind fußläufig zu erreichen. Die Innenstadt von Recklinghausen ist ca. 6 km entfernt.
Die Autobahnanschlüsse A2 und A42 befinden sich in unmittelbarer Nähe, wodurch auch umliegende Großstädte schnell und unkompliziert zu erreichen sind.

Ihr Ansprachpartner

Frau Lisa Wolter
FIM Finanz- und Immobilienmanagement GmbH
Gewerbepark 18
49143 Bissendorf
E-Mail: lisa.wolter@fim-gruppe.de
Tel.: +49 5402 / 701500
Fax: +49 5402 / 701515

KONTAKT AUFNEHMEN

Ich bitte um:


Mit * gekennzeichnete Felder sind Pflichtfelder.