FIM Gruppe
 Kaufen » Exposé

Traum-Einfamilienhaus nebst Einliegerwohnung mit Garage und Doppelcarport!

Ort Ostbevern

IMPRESSIONEN

Kaufpreis:

890.000,00 EUR   3,57 % % Courtage

Bechreibung

Bei diesem besonderen Schmuckstück werden Wohnträume wahr! Das Einfamilienhaus mit Einliegerwohnung befindet sich in einem absolut ruhigen und von Einfamilienhäusern geprägten Wohngebiet. Diese Immobilie verfügt über drei Ebenen und bietet massenhaft Platz zur freien Entfaltung. Die attraktive Raumaufteilung, großzügige, bodentiefe Fensterflächen und der Einsatz hochwertiger Materialien im Innenausbau ermöglichen hervorragende Lichtverhältnisse auf allen Wohnebenen. Lassen Sie sich von diesem exclusiven Immobilienangebot in traumhafter Lage überzeugen.

Im Jahre 2013 wurde dieses Einfamilienhaus nebst Einliegerwohnung auf einem 572 m² großen Grundstück errichtet. Das Wohnhaus befindet sich in einem neubaugerechten Zustand.

Haupthaus:

Beim Betreten Ihres Hauses verspüren Sie gleich ein Gefühl von Größe und Weite, da Sie direkt in einen großzügig geschnittenen Eingangsbereich, in dem Sie wunderbar Ihre Garderobe und vieles mehr unterbringen können, gelangen. Das Haupthaus verfügt über eine Wohnfläche von ca. 171 m² - bietet einen großen Wohn- und Essbereich mit tollem Blick auf die Terrasse sowie in den pflegeleichten Garten. Eine geräumige Küche grenzt an den Essbereich. Im Erdgeschoss befinden sich zudem der Hauswirtschaftsraum und ein Gäste-WC.

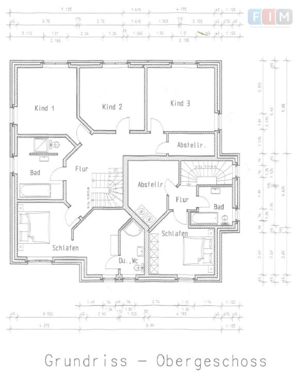
Auf der ersten Etage finden Sie 3 Kinderzimmer, ein Elternschlafzimmer mit Ankleide und eigenem Duschbad, ein großes Tageslichtbad nebst Abstellraum.

Das Dachgeschoss ist für den Ausbau bereits vorbereitet und ermöglicht eine zusätzliche Wohnfläche (ca. 100 m²).

Einliegerwohnung:

Ihre Enliegerwohnung ist über einen separaten Eingang zu erreichen und verfügt über eine Wohnfläche von ca. 95 m². Im Erdgeschoss befindet sich das große Wohnzimmer mit Zugang zur Terrasse, Küche, ein Gäste-Zimmer mit innenliegendem Duschbad und ein klassisches Gäste-WC.

Auf der ersten Etage finden Sie ein Schlafzimmer, das Tageslichtbad sowie einen Abstellraum.

Zum Haus gehören eine Garage sowie ein großes Doppelcarport mit Geräteraum.

Ausstattung


  • Objektart EINFAMILIENHAUS
  • Baujahr 266m²
  • Wohnfläche 266m²
  • Zimmerzahl 9
  • Badezimmer 4
  • Terassen 2

Lage

Ostbevern gilt zu Recht als lebens- und liebenswerter Wohnort. Die Gemeinde zählt ca. 11.000 Einwohner. Die überschaubare Größe hat viele Vorzüge, die die Lebens- und Wohnqualität positiv beeinflussen. Neben dem Wohnen im Grünen ist infrastrukturell für alles gesorgt.

Ostbevern liegt im Norden des Kreises Warendorf. Es besteht eine sehr gute Anbindung an die A1, A43 und B51. Ostbevern zeichnet sich durch einen hohen Freizeitwert aus. Im Sommer lockt ein Ausflug in die Natur. Ein weitverzweigtes Radwegnetz mit schönen Picknickplätzen, Spazier- und Wanderwegen laden dazu ein.

Am Ort sind alle Schulabschlüsse möglich, die ärztliche Grundversorgung ist gesichert. Ein reichhaltiges und vielseitiges Warenangebot sorgt für die Deckung des täglichen Bedarfs. Geschäfte, Freizeiteinrichtungen, Ärzte, Apotheken und Banken sind im Umkreis von innerhalb 500 m bequem zu Fuß zu erreichen.

Die sehr gute Anbindung zu Münster und auch Osnabrück, sorgt für eine individuelle Mobilität. Diese sind bequem über die öffentlichen Verkehrsmitteln oder dem eigenen Auto zu erreichen. Die Haltestellen der Buslinien sind fußläufig gelegen. Der Bahnhof Ostbevern ist ca. 5 km vom Stadtkern entfernt. Auch die Nachbarorte Telgte, Warendorf und Glandorf sind schnell zu erreichen.

Ihr Ansprachpartner

Herr Emil Muracevic
FIM Finanz- und Immobilienmanagement GmbH
Gewerbepark 18
49143 Bissendorf
E-Mail: emil.muracevic@fim-gruppe.de
Tel.: +49 5402 / 701500
Fax: +49 5402 / 701515

KONTAKT AUFNEHMEN

Ich bitte um:


Mit * gekennzeichnete Felder sind Pflichtfelder.